Reservar una cita
Descripción
- Descripción:
Exclusivo chalet adosado en Los Cortijos de La Reserva -Sotogrande – Vivienda En Rentabilidad (4,27% anual)
FV Broker Inmobiliario comercializa este precioso chalet adosado de 3 dormitorios y 3 baños en Los Cortijos de La Reserva, una de las zonas más exclusivas de Sotogrande. Situado en un enclave de lujo con vistas al campo de golf de La Reserva y al mar, esta propiedad es una excelente oportunidad de inversión, ya que actualmente se encuentra alquilada con contrato de larga estancia, generando una rentabilidad del 4,27% anual.🏡 Distribución y características
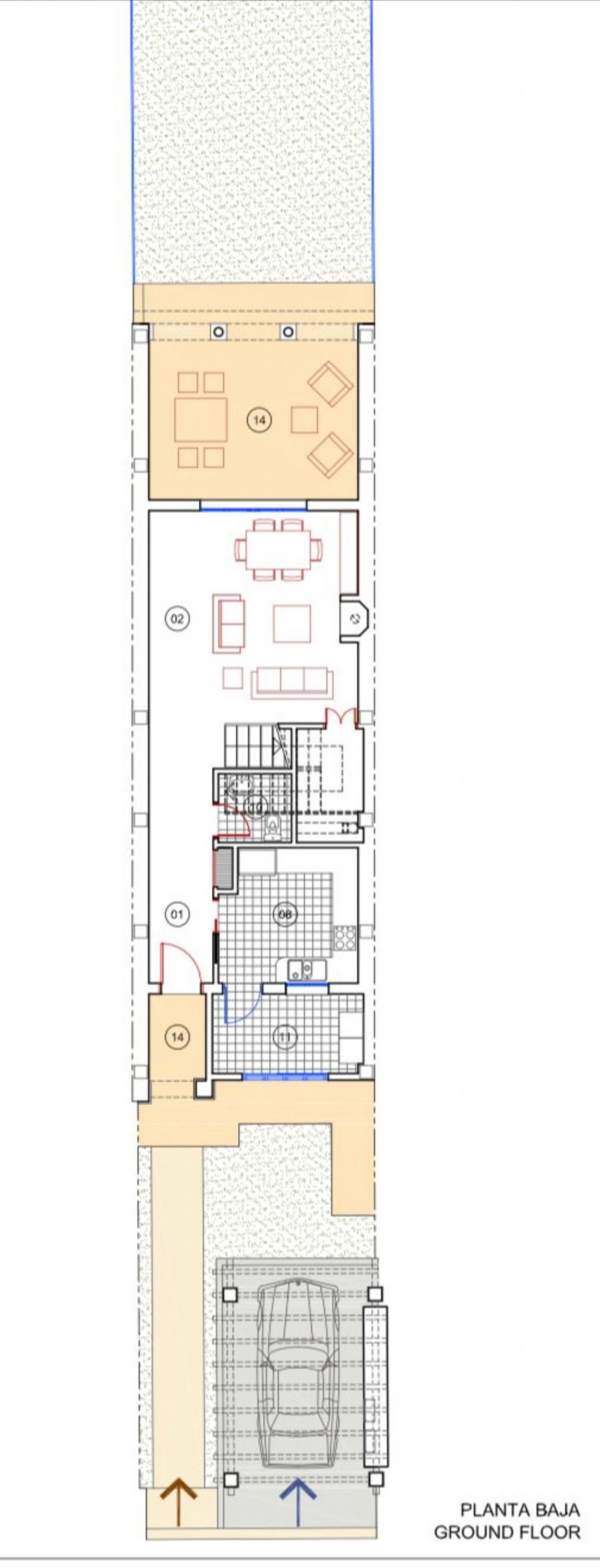
✅ Planta baja:Cocina independiente totalmente equipada con electrodomésticos y salida a zona de lavandería.
Salón-comedor con una hermosa chimenea central, que se abre a una cristalera con acceso a una terraza techada y un jardín privado.
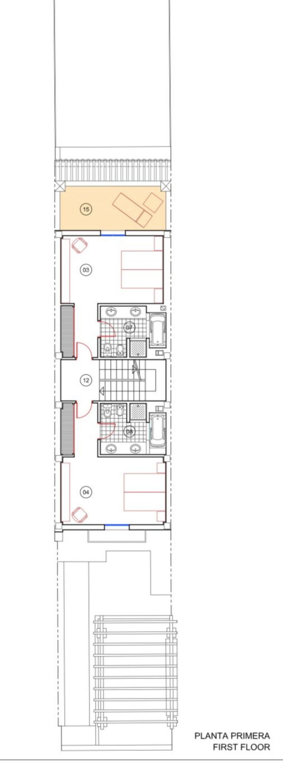
✅ Primera planta:Dos dormitorios amplios con armarios empotrados y grandes ventanales.
Dos baños completos, uno de ellos en suite.
Terraza cubierta con acceso desde uno de los dormitorios.
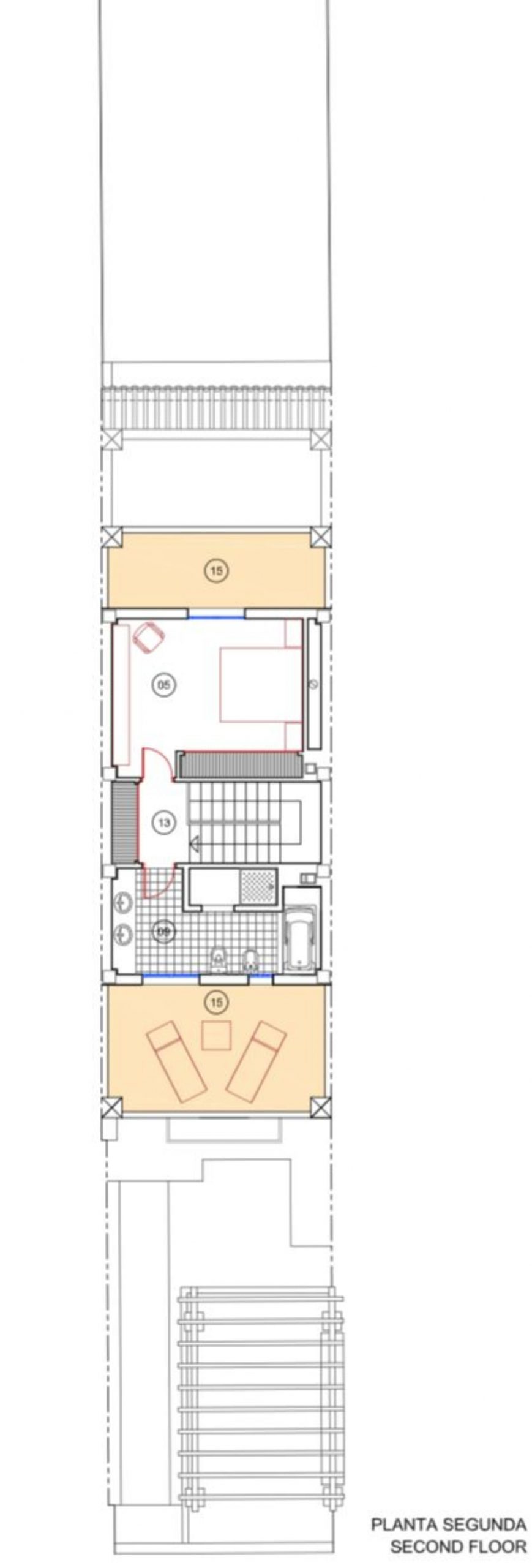
✅ Segunda planta:Tercer dormitorio con un amplio baño y su propia terraza privada.
✅ Extras:Aire acondicionado frío/calor.
Suelo radiante para máximo confort.
Doble acristalamiento, garantizando aislamiento y eficiencia energética.
🌿 Ubicación privilegiada en La Reserva de Sotogrande
Ubicada en un oasis de tranquilidad y lujo, esta propiedad forma parte de una urbanización privada con vistas panorámicas. La Reserva Club ofrece un sinfín de comodidades exclusivas:🏌 Golf de primer nivel: uno de los mejores campos de golf de Andalucía.
🎾 Centro de tenis y pádel recién inaugurado.
🏋️ Gimnasio y salas de ejercicio en el elegante Club-house, recientemente renovado.
🍽 Restaurante L’Olive con terraza panorámica.
🏖 Impresionante club de playa, con la playa artificial más grande de Europa.
🌊 Laguna deportiva, centro de bienestar y exclusivas zonas de ocio.📑 Oportunidad de inversión
📅 Contrato de alquiler en vigor desde septiembre de 2022, con el primer año de obligado cumplimiento.
📈 Rentabilidad garantizada del 4,27% anual, ideal para inversores que buscan un activo seguro y exclusivo.📞 Para más información y visitas, contacta con FV Broker Inmobiliario.
Situación del Inmueble
- Tipo de Inmueble: Chalet Adosado
- Situación: Segunda mano
- Estado general del inmueble: Buen estado
- Año de construcción: 2008
Superficie del Inmueble
- m² Construidos: 265 m²
- m² Útiles: 202 m²
- m² Salón: 30 m²
Distribución Del Inmueble
- Nº de Dormitorios: 3
- Nº de Baños: 2
- Nº de Aseos: 1
- Tipo Cocina: Independiente
- Nº Plantas del Edificio: 2
- Trastero: Si
- Estacionamiento: Garaje independiente
- Terraza: Si
- Chimenea: Si
Características y calidades
- Tipo Suelo: Porcelánicos
- Tipos de ventanas: Aluminio
- Calefacción: Calefacción por suelo radiante
- Agua Caliente: Gas
- Materiales exteriores: Ladrillo
Alrededores Del Inmueble
- Zona Comercial: Si
- Restaurantes: Si
- Centro Comercial: Si
- Centros de Salud: Si
Solicitar más información
Viviendas similares

